中野市 中野 中古住宅 5LDK 1,980万円
長野県 中野市 「中野松川」駅より徒歩10分・現在リノベーション中の5LDK!
管理番号44971
物件ID4703
日本マウント株式会社
※当サイトの写真を無断で使用、アップロードすることはご遠慮ください。
※Unauthorized copying and replication of the contents of this site, text and images are strictly prohibited.
ここがポイント!
注目のポイント
- 「中野松川」駅より徒歩10分・現在リノベーション中の5LDK!
- 信州中野駅、厚生連北信総合病院まで車で約6分の立地!
日本マウント株式会社からのメッセージ
- 〇信州中野駅、厚生連北信総合病院まで車で約6分の立地です。
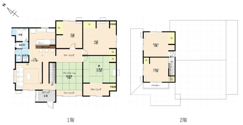
現在はリフォーム中、終了後にお引渡し致します。
お風呂は拡張して広くなります。
こだわり一覧
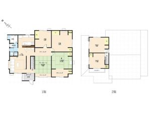
この物件の詳細
| 物件ID / 管理番号 | 4703 / 44971 |
|---|---|
| 所在地 | 長野県中野市中野 |
| 交通 |
⾧野線「中野松川」駅より徒歩 約10分 約800m ⾧野線「信州中野」駅より車で 約7分 約2.3km |
| 土地面積 | (公簿) 277.65m2 |
| 建物規模 | 地上階数 2階 |
| 建物面積 | 152.67m2 |
| 土地権利 | 所有権 |
| 地目 | 宅地 |
| 都市計画 | 非線引区域 |
| 用途地域 | 第一種住居地域 |
| 建ぺい率 | 60% |
| 容積率 | 200% |
| 築年月 | 昭和27年 / 1952年 5月 |
| 駐車場 | あり 駐車スペース3台分 |
| 建物現況 | 空き家 |
| 土地現況 | 建物あり |
| 引渡時期 | 相談 |
| 引渡条件 | 現況渡リフォーム終了後 |
| 接道状況 |
北西 公道 幅員3.5m
|
| 設備1 | 公営水道 本下水 プロパンガス |
| 設備2 | |
| その他設備 | バス・トイレ別、コンロ口数三口、洗髪洗面化粧台、追い焚き、照明器具付き |
| 備考(その他情報) | ■図面と現況が異なる場合は現況優先します。 ■司法書士及びプロパンガス会社は売主指定となります。 ■固定資産税:41,129円※令和7年度分 |
| 取引態様 | 仲介 |
この物件は日本マウント株式会社が取り扱っています
この物件の周辺地図
【ご注意】現地の場所は必ずしも正確ではなく、”大体の場所”を示していることがありますので、一度お問い合わせください。
この物件のお問い合わせはこちら
情報提供会社
日本マウント株式会社
- 所在地
- 東京都品川区平塚2-5-8五反田ミカドビル3F
- 加盟団体
- <社>全日本不動産協会
- 免許番号
- 東京都知事(4)第87982号
- 会社メッセージ
-
相続のお悩み、移住、都内への引っ越し、日本マウントグループは、ワンストップで不動産トラブルの難題を解決してきました。
田舎暮らし物件、リゾート物件を扱う日本マウント株式会社と、東京を中心に一都三県の都心の物件を扱う株式会社首都圏不動産販売。
そして、相続問題、税金問題、不動産問題を解決に導くアイレス株式会社の3社があなたの悩みを解決します。
日本マウントは主な事業として、那須・安曇野・八ヶ岳・富士五湖・南房総等の中古別荘や、長野県、山梨県、栃木県、茨城県、千葉県、静岡県の中古住宅、田舎暮らし向きの住宅の売買・仲介をしております。
また、物件の買取・調査・管理も行っています。田舎暮らしのお手伝いもいたします。
物件数も日々増えていきますので、リーズナブルな優良物件を見逃さないよう、当社ホームページを小まめにご覧いただければと思います。
関連する物件
この物件に類似するものをピックアップしてみました。










































