夷隅郡御宿町 上布施 中古住宅 4LDK+S(納戸) 1,548万円
千葉県 夷隅郡御宿町 古民家・古民家風 田舎暮らし物件 ■■大正6年築のTHE古民家!目の前に広がる水田風景■■
物件ID4694
東拓建設株式会社
※当サイトの写真を無断で使用、アップロードすることはご遠慮ください。
※Unauthorized copying and replication of the contents of this site, text and images are strictly prohibited.
ここがポイント!
注目のポイント
- ■■大正6年築のTHE古民家!目の前に広がる水田風景■■
東拓建設株式会社からのメッセージ
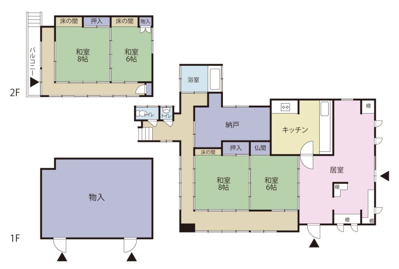
- ■敷地面積:852.98m2(258.03坪)
■建物面積:105.65m2(31.96坪)
■間取り:4LDK+S
・海まで車で15分
・古民家カフェ経営や民泊におすすめ♪
・築100年の屋根の内側は圧巻の美しさ
▲▲▲▲▲▲▲▲▲▲▲▲▲▲▲▲▲▲▲▲▲▲▲▲▲▲▲▲▲▲▲▲▲▲
“千葉・南房総で田舎暮らし”海の見える暮らし・里山の古民家など物件充実!
お気軽にフリーダイヤル「0120-633-311」へお問い合わせください!!
▲▲▲▲▲▲▲▲▲▲▲▲▲▲▲▲▲▲▲▲▲▲▲▲▲▲▲▲▲▲▲▲▲▲
こだわり一覧
古民家田舎暮らし田園和風平屋隠れ家週末1000m
この物件の詳細
| 物件No. | 4694 |
|---|---|
| 所在地 | 千葉県夷隅郡御宿町上布施1399 |
| 交通 |
JR外房線御宿駅約3.5km 車で約5分 圏央道市原鶴舞IC約27.6km 車で約37分 |
| 土地面積 | (公簿) 852.98m2 |
| 建物構造 | 木造 |
| 建物規模 | 地上階数 1階 |
| 建物面積 | 105.65m2 |
| 土地権利 | 所有権 |
| 地目 | 宅地 |
| 都市計画 | 非線引区域 |
| 用途地域 | 無指定 |
| 建ぺい率 | 60% |
| 容積率 | 200% |
| 築年月 | 大正6年 |
| 駐車場 | あり |
| 建物現況 | 空き家 |
| 引渡時期 | 相談 |
| 引渡条件 | 現況渡 |
| 接道状況 |
東 幅員6.6m
|
| 設備1 | 公営水道 汲取り プロパンガス 電気 |
| 設備2 | 納戸 収納スペース バルコニー 床の間 駐車2台以上 |
| 取引態様 | 売主 |
この物件は東拓建設株式会社が取り扱っています
この物件の周辺地図
【ご注意】現地の場所は必ずしも正確ではなく、”大体の場所”を示していることがありますので、一度お問い合わせください。
この物件のお問い合わせはこちら
情報提供会社
東拓建設株式会社
- 所在地
- 東京都豊島区池袋2丁目54-14東拓ビル
- 加盟団体
- 公益社団法人 全日本不動産協会・公益社団法人 不動産保証協会
- 免許番号
- 国土交通大臣(7)第5319号
- 会社メッセージ
-
●千葉・南房総の田舎暮らし物件ならおまかせください♪
今人気のキャンプ用地や人里離れた山物件、川隣接のサウナテント用地や
憧れのぽつんと一軒家はもちろん、海が一望できるリゾート用地や別荘など
多数の物件を取り揃えております♪
都心からのアクセスも便利な南房総は田舎暮らし初心者にもピッタリ♪
●昭和58年3月創業以来、南房総を主に、売農家及び海浜リゾート物件を取り扱い、多数のお客様に定住用の物件や別荘としての物件を多数ご紹介して参りました。
南房総への定住を、別荘をとお考えの方、農園や釣りのできるこの地の
関連する物件
この物件に類似するものをピックアップしてみました。














































