栃木市 城内町 戸建て 2DK 280万円
栃木県 栃木市 古民家・古民家風 南向き広縁付きの平屋。自分好みの改修が可能
物件ID4796
株式会社TSUKUBITO
※当サイトの写真を無断で使用、アップロードすることはご遠慮ください。
※Unauthorized copying and replication of the contents of this site, text and images are strictly prohibited.
ここがポイント!
注目のポイント
- 南向き広縁付きの平屋。自分好みの改修が可能
株式会社TSUKUBITOからのメッセージ
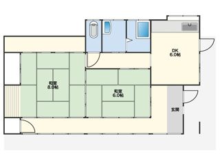
- 和室中心の平屋住宅です。南向きに面した広縁があり、日当たりの確保に配慮された設計となっています。8畳と6畳の続き間は、用途に合わせて一体利用も可能です。周辺は戸建て住宅が立ち並ぶ落ち着いた環境です。
平屋のため階段の上り下りがなく、生活動線がワンフロアで完結する利便性があります。
本物件は現状有姿での引き渡しとなります。内装や水回り、外装に経年相応の使用感があるため、購入後のリフォームやメンテナンスを前提としたご検討をお勧めいたします。
お好みの設備への交換や内装の変更など、ご自身で住まいを整えたい方に適した物件です。
栃木駅周辺の利便性と落ち着いた住環境を兼ね備えたエリアです。現地のご案内は随時承っております。
こだわり一覧
古民家平屋DIY
この物件の詳細
| 物件No. | 4796 |
|---|---|
| 所在地 | 栃木県栃木市城内町2丁目 |
| 交通 |
JR両毛線「栃木」駅21分(1680m) バス栃木県栃木市ツタヤ前13分 |
| 土地面積 | (公簿) 188.43m2 |
| 建物構造 | 木造 |
| 建物規模 | 地上階数 1階 |
| 建物面積 | 62.93m2 |
| 土地権利 | 所有権 |
| 地目 | 宅地 |
| 都市計画 | 市街化区域 |
| 用途地域 | 第一種住居地域 |
| 建ぺい率 | 60% |
| 容積率 | 200% |
| 築年月 | 昭和54年 / 1979年 1月 |
| 駐車場 | あり |
| 駐車賃料 | 0円 |
| 建物現況 | 居住中 |
| 引渡時期 | 相談 |
| 引渡条件 | 現況渡 |
| 接道状況 |
南 間口3.5m
私道 幅員4m
|
| 設備1 | 公営水道 汲取り プロパンガス 電気 |
| 設備2 | |
| 取引態様 | 専任媒介 |
この物件は株式会社TSUKUBITOが取り扱っています
この物件の周辺地図
【ご注意】現地の場所は必ずしも正確ではなく、”大体の場所”を示していることがありますので、一度お問い合わせください。
この物件のお問い合わせはこちら
情報提供会社
株式会社TSUKUBITO
- 所在地
- 東京都葛飾区高砂5-41-3
- 加盟団体
- 免許番号
- 東京都知事(1)第107345号
- 会社メッセージ
-
“買いたい方と売りたい方を繋ぐ“ことを大切にご紹介をしています。
「こんな物件が気になる」「この場所に住みたい」などなど、ご相談も承ります!
200を超える加盟店が全国で活動しているので、どんな場所のお家でもご提案可能です。
※株式会社TSUKUBITOは「よくばり売却」を運営しています。
関連する物件
この物件に類似するものをピックアップしてみました。









































