水戸市 元吉田町 中古住宅 4K 500万円
茨城県 水戸市 最寄りのコンビニまで徒歩約2分!スーパー、ドラッグストアも徒歩10分圏内!
管理番号1-B-265
物件ID4751
有限会社ランドワークス
※当サイトの写真を無断で使用、アップロードすることはご遠慮ください。
※Unauthorized copying and replication of the contents of this site, text and images are strictly prohibited.
ここがポイント!
注目のポイント
- 最寄りのコンビニまで徒歩約2分!スーパー、ドラッグストアも徒歩10分圏内!
こだわり一覧
この物件の詳細
| 物件ID / 管理番号 | 4751 / 1-B-265 |
|---|---|
| 所在地 | 茨城県水戸市元吉田町 |
| 交通 |
JR常磐線(取手〜いわき) 「水戸」駅 バス15分「元吉田北」停歩9分 JR水郡線 「水戸」駅 徒歩43分 鹿島臨海鉄道 「水戸」駅 徒歩42分 |
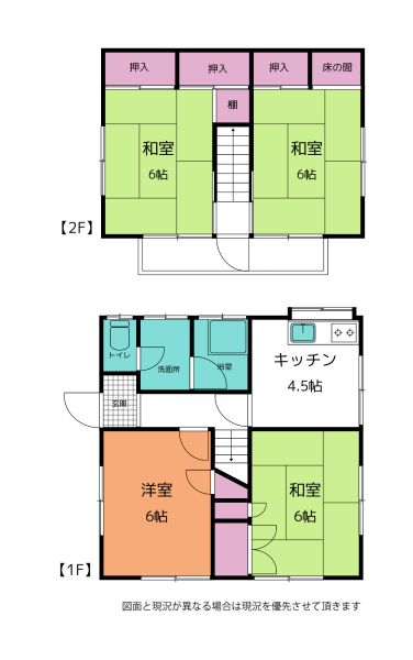
| 土地面積 | (公簿) 104.03m2 |
| 他に私道面積 | 75m2 /持分1/6 |
| 建物構造 | 木造 |
| 建物規模 | 地上階数 2階 |
| 建物面積 | 69.39m2 |
| 土地権利 | 所有権 |
| 地目 | 宅地 |
| 都市計画 | 市街化区域 |
| 用途地域 | 第一種中高層住居専用地域 |
| 建ぺい率 | 60% |
| 容積率 | 200% |
| 地勢 | 平坦 |
| 築年月 | 昭和58年 / 1983年 7月 |
| 駐車場 | あり |
| 建物現況 | 空き家 |
| 引渡時期 | 即時 |
| 引渡条件 | 現況渡 |
| 接道状況 |
南 私道 幅員4.5m
位置指定道路
|
| 設備1 | 公営水道 浄化槽 プロパンガス 電気 |
| 設備2 | |
| 備考(その他情報) | 現況渡し・公共下水引込あり(未接続) |
| 取引態様 | 売主 |
この物件は有限会社ランドワークスが取り扱っています
この物件の周辺地図
【ご注意】現地の場所は必ずしも正確ではなく、”大体の場所”を示していることがありますので、一度お問い合わせください。
この物件のお問い合わせはこちら
情報提供会社
有限会社ランドワークス
- 所在地
- 茨城県水戸市元吉田町1640-1
- 加盟団体
-
全国ネットワークの不動産仲介「イエステーション」
(公社)全国宅地建物取引業協会連合会
(公社)全国宅地建物取引業保証協会
(公社)東日本不動産流通機構会員 - 免許番号
- 茨城県知事(7)第5216号
- 会社メッセージ
-
平成5年の創業の総合不動産会社です。
『頼れる』『相談される』『家族のようなお付き合いができる』不動産会社を目指しています。
特に地域密着に取り組んできましたので、専門知識はもちろんのこと、【地域を熟知した】スタッフがお客様のお手伝いできることが弊社の強みとなっています。
お客様の夢、想いをしっかり理解した上、より幸せになって頂きたいということを第一に、『コンサルティング仲介』に力を入れています。
関連する物件
この物件に類似するものをピックアップしてみました。











































