熱海市 上多賀 「熱海自然郷」 中古別荘 2LDK 3,800万円
静岡県 熱海市 〇「熱海自然郷」
管理番号1818
物件ID4750
日本マウント株式会社
※当サイトの写真を無断で使用、アップロードすることはご遠慮ください。
※Unauthorized copying and replication of the contents of this site, text and images are strictly prohibited.
ここがポイント!
注目のポイント
- 〇「熱海自然郷」
- 〇大型デザインハウス×薪ストーブ
日本マウント株式会社からのメッセージ
- 熱海自然郷に佇む、高台の三方角地に建つ大型デザインハウスのご紹介です。
相模湾のきらめきと豊かな緑を一望する開放的なロケーションにあり、壮大な自然と一体となる暮らしを実現します。
三方角地ならではの陽当たりと通風の良さに加え、室内には大きな開口部を設け、どこにいても光と風、そして美しい景観を感じられる設計。
時間とともに表情を変える海と空の風景が、日常に特別な彩りを添えます。
設備面では、環境に配慮したオール電化仕様を採用し、OMソーラーや薪ストーブを備えています。
自然エネルギーを活かしたやさしい住環境と、薪ストーブのぬくもりが心まで満たす上質な空間を演出。
快適性と環境性能を兼ね備えた住まいです。
こだわり一覧
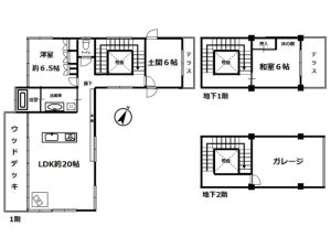
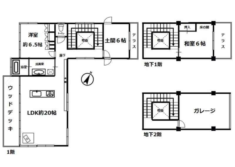
この物件の詳細
| 物件ID / 管理番号 | 4750 / 1818 |
|---|---|
| 所在地 | 静岡県熱海市上多賀 |
| 交通 |
JR東海道新幹線「熱海駅」より車約15分(約8km) |
| 土地面積 | (公簿) 2,641m2 |
| 建物構造 | 木造鉄筋コンクリート |
| 建物規模 | 地上階数 1階 地下階数 2階 |
| 建物面積 | 153.8m2 |
| 土地権利 | 所有権 |
| 地目 | 山林 |
| 都市計画 | 非線引区域 |
| 用途地域 | 無指定 |
| 建ぺい率 | 30% |
| 容積率 | 150% |
| 築年月 | 平成23年 / 2011年 5月 |
| 駐車場 | あり 2台可(内1台車庫) |
| 建物現況 | 空き家 |
| 引渡時期 | 相談 |
| 引渡条件 | 現況渡 |
| 接道状況 |
接道状態:三方 接道方向:北東 幅員:6.0m 私道 位置指定有 接道方向:南東 幅員:6.0m 私道 位置指定有 接道方向:南西 幅員:6.0m 私道 位置指定有 |
| 設備1 | 公営水道 浄化槽 電気 |
| 設備2 | オール電化 収納スペース ウッドデッキ 土間 駐車2台以上 |
| その他設備 | 室内洗濯機置場 全居室収納 |
| 取引態様 | 仲介 |
この物件は日本マウント株式会社が取り扱っています
この物件の周辺地図
【ご注意】現地の場所は必ずしも正確ではなく、”大体の場所”を示していることがありますので、一度お問い合わせください。
この物件のお問い合わせはこちら
情報提供会社
日本マウント株式会社
- 所在地
- 東京都品川区平塚2-5-8五反田ミカドビル3F
- 加盟団体
- <社>全日本不動産協会
- 免許番号
- 東京都知事(4)第87982号
- 会社メッセージ
-
相続のお悩み、移住、都内への引っ越し、日本マウントグループは、ワンストップで不動産トラブルの難題を解決してきました。
田舎暮らし物件、リゾート物件を扱う日本マウント株式会社と、東京を中心に一都三県の都心の物件を扱う株式会社首都圏不動産販売。
そして、相続問題、税金問題、不動産問題を解決に導くアイレス株式会社の3社があなたの悩みを解決します。
日本マウントは主な事業として、那須・安曇野・八ヶ岳・富士五湖・南房総等の中古別荘や、長野県、山梨県、栃木県、茨城県、千葉県、静岡県の中古住宅、田舎暮らし向きの住宅の売買・仲介をしております。
また、物件の買取・調査・管理も行っています。田舎暮らしのお手伝いもいたします。
物件数も日々増えていきますので、リーズナブルな優良物件を見逃さないよう、当社ホームページを小まめにご覧いただければと思います。
関連する物件
この物件に類似するものをピックアップしてみました。



















































