伊東市 宇佐美 中古別荘 2LDK 1,300万円
静岡県 伊東市 〇宇佐美みのりの村別荘地
管理番号1801
物件ID4734
日本マウント株式会社
※当サイトの写真を無断で使用、アップロードすることはご遠慮ください。
※Unauthorized copying and replication of the contents of this site, text and images are strictly prohibited.
ここがポイント!
注目のポイント
- 〇宇佐美みのりの村別荘地
- 〇分譲地内には、スパ施設やレストラン、テニスコート、貸農園など充実した共用施設があります
日本マウント株式会社からのメッセージ
- 静岡県伊東市宇佐美に位置する「宇佐美みのりの村別荘地」内の物件です。
管理体制の行き届いた安心の別荘分譲地で、四季折々の豊かな自然に囲まれながら、ゆったりとした時間をお過ごしいただけます。
分譲地内には、スパ施設やレストラン、テニスコート、貸農園など充実した共用施設が揃っており、大人はもちろんお子様も楽しめる環境が整っています。ご家族での週末利用や長期滞在にも最適です。
都心からのアクセスも良好な伊東エリア。
海と山に囲まれたロケーションで、日常を忘れる贅沢なひとときを実現しませんか。
こだわり一覧
週末管理
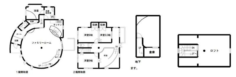
この物件の詳細
| 物件ID / 管理番号 | 4734 / 1801 |
|---|---|
| 所在地 | 静岡県伊東市宇佐美 |
| 交通 |
JR伊東線 / 宇佐美駅 徒歩89分 |
| 土地面積 | (公簿) 531m2 |
| 建物構造 | 木造 |
| 建物規模 | 地上階数 2階 |
| 建物面積 | 113.05m2 |
| 土地権利 | 所有権 |
| 地目 | 他 |
| 都市計画 | 非線引区域 |
| 用途地域 | 無指定 |
| 建ぺい率 | 40% |
| 容積率 | 80% |
| 築年月 | 平成6年 / 1994年 6月 |
| 法令上の制限 | 分譲地管理規約あり・名義変更料等あり宅地造成等規制法・県条例第10条土石災害危険箇所・急傾斜地崩壊危険箇所 |
| 建物現況 | 空き家 |
| 引渡時期 | 相談 |
| 引渡条件 | 現況渡 |
| 接道状況 | |
| 設備1 | |
| 設備2 | |
| 取引態様 | 仲介 |
この物件は日本マウント株式会社が取り扱っています
この物件の周辺地図
【ご注意】現地の場所は必ずしも正確ではなく、”大体の場所”を示していることがありますので、一度お問い合わせください。
この物件のお問い合わせはこちら
情報提供会社
日本マウント株式会社
- 所在地
- 東京都品川区平塚2-5-8五反田ミカドビル3F
- 加盟団体
- <社>全日本不動産協会
- 免許番号
- 東京都知事(4)第87982号
- 会社メッセージ
-
相続のお悩み、移住、都内への引っ越し、日本マウントグループは、ワンストップで不動産トラブルの難題を解決してきました。
田舎暮らし物件、リゾート物件を扱う日本マウント株式会社と、東京を中心に一都三県の都心の物件を扱う株式会社首都圏不動産販売。
そして、相続問題、税金問題、不動産問題を解決に導くアイレス株式会社の3社があなたの悩みを解決します。
日本マウントは主な事業として、那須・安曇野・八ヶ岳・富士五湖・南房総等の中古別荘や、長野県、山梨県、栃木県、茨城県、千葉県、静岡県の中古住宅、田舎暮らし向きの住宅の売買・仲介をしております。
また、物件の買取・調査・管理も行っています。田舎暮らしのお手伝いもいたします。
物件数も日々増えていきますので、リーズナブルな優良物件を見逃さないよう、当社ホームページを小まめにご覧いただければと思います。
関連する物件
この物件に類似するものをピックアップしてみました。















































