八街市 八街い 中古住宅 3LDK 3,280万円
千葉県 八街市 田舎暮らし物件 薪ストーブ・暖炉 〇敷地面積250坪のゆとりある平屋3LDK
管理番号9755
物件ID4698
日本マウント株式会社
※当サイトの写真を無断で使用、アップロードすることはご遠慮ください。
※Unauthorized copying and replication of the contents of this site, text and images are strictly prohibited.
ここがポイント!
注目のポイント
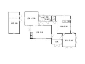
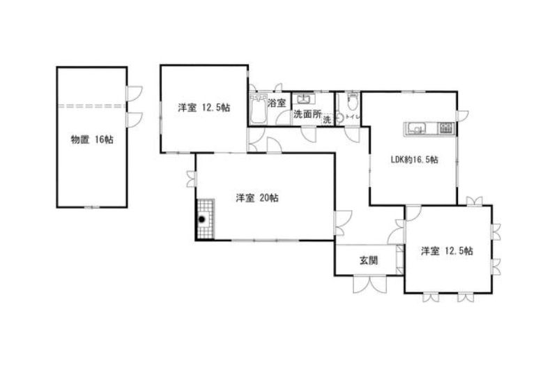
- 〇敷地面積250坪のゆとりある平屋3LDK
- 〇内外装リフォーム済み
- 〇薪ストーブ付きの広々リビング
- 〇BBQ・家庭菜園・ドッグランも可能な広い庭(物置あり)
- 〇駐車場4台分完備
日本マウント株式会社からのメッセージ
- 薪ストーブのあるリビングが家族の集まる平屋3LDK。広い庭ではBBQやドッグランなど、多彩な楽しみ方が広がります。
◇周辺環境◇
交進小学校 2.6㎞
八街中央中学校 4.0㎞
八街郵便局 4.2㎞
セブンイレブン 240m
DCMホームセンター 2.7㎞
ドラッグストアコスモス 2.8㎞
トライアル 3.1㎞
八街市スポーツプラザ 200m
こだわり一覧
田舎暮らし薪スト平屋
この物件の詳細
| 物件ID / 管理番号 | 4698 / 9755 |
|---|---|
| 所在地 | 千葉県八街市八街い |
| 交通 |
JR総武本線「八街」駅 約4.4㎞ JR総武本線「榎戸」駅 約7.6㎞ |
| 土地面積 | (公簿) 829.10m2 |
| 建物規模 | 地上階数 1階 |
| 建物面積 | 139.94m2 |
| 土地権利 | 所有権 |
| 都市計画 | 非線引区域 |
| 用途地域 | 無指定 |
| 建ぺい率 | 60% |
| 容積率 | 200% |
| 地勢 | 平坦 |
| 築年月 | 平成9年 / 1997年 6月 |
| 駐車場 | あり (4台) |
| 建物現況 | 空き家 |
| 引渡時期 | 相談 |
| 引渡条件 | 現況渡 |
| 接道状況 |
東 3.6m 公道 18.2m 接面 南 4m 私道 37.8m接面 |
| 設備1 | 井戸 浄化槽 プロパンガス |
| 設備2 | |
| その他設備 | カウンターキッチン、システムキッチン 追焚機能,温水洗浄便座,シャンプードレッサー バス1坪以上,照明器具付き モニター付きインターホン |
| 備考(その他情報) | 物置:26.49㎡ |
| 取引態様 | 仲介 |
この物件は日本マウント株式会社が取り扱っています
この物件の周辺地図
【ご注意】現地の場所は必ずしも正確ではなく、”大体の場所”を示していることがありますので、一度お問い合わせください。
この物件のお問い合わせはこちら
情報提供会社
日本マウント株式会社
- 所在地
- 東京都品川区平塚2-5-8五反田ミカドビル3F
- 加盟団体
- <社>全日本不動産協会
- 免許番号
- 東京都知事(4)第87982号
- 会社メッセージ
-
相続のお悩み、移住、都内への引っ越し、日本マウントグループは、ワンストップで不動産トラブルの難題を解決してきました。
田舎暮らし物件、リゾート物件を扱う日本マウント株式会社と、東京を中心に一都三県の都心の物件を扱う株式会社首都圏不動産販売。
そして、相続問題、税金問題、不動産問題を解決に導くアイレス株式会社の3社があなたの悩みを解決します。
日本マウントは主な事業として、那須・安曇野・八ヶ岳・富士五湖・南房総等の中古別荘や、長野県、山梨県、栃木県、茨城県、千葉県、静岡県の中古住宅、田舎暮らし向きの住宅の売買・仲介をしております。
また、物件の買取・調査・管理も行っています。田舎暮らしのお手伝いもいたします。
物件数も日々増えていきますので、リーズナブルな優良物件を見逃さないよう、当社ホームページを小まめにご覧いただければと思います。
関連する物件
この物件に類似するものをピックアップしてみました。










































