富里市 立沢新田 戸建て 1LDK 2,690万円
千葉県 富里市 中古ログハウス コンパクトな敷地に建つ希少な築浅ログハウス。
管理番号9694
物件ID4472
日本マウント株式会社
※当サイトの写真を無断で使用、アップロードすることはご遠慮ください。
※Unauthorized copying and replication of the contents of this site, text and images are strictly prohibited.
ここがポイント!
注目のポイント
- コンパクトな敷地に建つ希少な築浅ログハウス。
日本マウント株式会社からのメッセージ
- ログハウスによる施工、1F間取り変更可能、室内材木のに使用 投資用としても築浅にて、お勧めです。
こだわり一覧
ログハウスデザイン
この物件の詳細
| 物件ID / 管理番号 | 4472 / 9694 |
|---|---|
| 所在地 | 千葉県富里市立沢新田 |
| 交通 |
JR成田線「成田」駅 徒歩8500m [バス利用可] バス 21分 富里郵便局 停歩5分 |
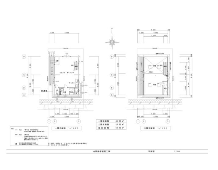
| 土地面積 | (公簿) 92.57m2 |
| 建物構造 | 木造 |
| 建物規模 | 地上階数 2階 |
| 建物面積 | 64.63m2 |
| 土地権利 | 所有権 |
| 地目 | 宅地 |
| 都市計画 | 非線引区域 |
| 用途地域 | 無指定 |
| 建ぺい率 | 60% |
| 容積率 | 200% |
| 地勢 | 平坦 |
| 築年月 | 平成24年 / 2012年 7月 |
| 駐車場 | なし |
| 建物現況 | 空き家 |
| 引渡時期 | 相談 |
| 引渡条件 | 現況渡 |
| 接道状況 |
北 間口7.3m
公道 幅員6m
|
| 設備1 | 本下水 プロパンガス |
| 設備2 | IHクッキングヒーター 温水洗浄便座 エアコン 複層ガラス ウッドデッキ |
| その他設備 | 2口コンロ 全居室収納、クローゼット、モニター付インターホン、全居室フローリング 照明器具 木製サッシ、木製ドア |
| 備考(その他情報) | リフォーム履歴: 内装 2025年4月 清掃済 バルコニー:8m² 主要採光面:西向き 建築確認完了検査済証あり、新築時・増改築時の設計図書あり 防蟻工事 天窓:複層ガラス 飛散防止膜入り(アルミ枠) |
| 取引態様 | 仲介 |
この物件は日本マウント株式会社が取り扱っています
この物件の周辺地図
【ご注意】現地の場所は必ずしも正確ではなく、”大体の場所”を示していることがありますので、一度お問い合わせください。
この物件のお問い合わせはこちら
情報提供会社
日本マウント株式会社
- 所在地
- 東京都品川区平塚2-5-8五反田ミカドビル3F
- 加盟団体
- <社>全日本不動産協会
- 免許番号
- 東京都知事(4)第87982号
- 会社メッセージ
-
相続のお悩み、移住、都内への引っ越し、日本マウントグループは、ワンストップで不動産トラブルの難題を解決してきました。
田舎暮らし物件、リゾート物件を扱う日本マウント株式会社と、東京を中心に一都三県の都心の物件を扱う株式会社首都圏不動産販売。
そして、相続問題、税金問題、不動産問題を解決に導くアイレス株式会社の3社があなたの悩みを解決します。
日本マウントは主な事業として、那須・安曇野・八ヶ岳・富士五湖・南房総等の中古別荘や、長野県、山梨県、栃木県、茨城県、千葉県、静岡県の中古住宅、田舎暮らし向きの住宅の売買・仲介をしております。
また、物件の買取・調査・管理も行っています。田舎暮らしのお手伝いもいたします。
物件数も日々増えていきますので、リーズナブルな優良物件を見逃さないよう、当社ホームページを小まめにご覧いただければと思います。
関連する物件
この物件に類似するものをピックアップしてみました。















































