川越市 川鶴 中古住宅 2LDK+S(納戸) 2,200万円
埼玉県 川越市 〇広々とした土地約63坪の戸建て
管理番号1743
物件ID4576
日本マウント株式会社
※当サイトの写真を無断で使用、アップロードすることはご遠慮ください。
※Unauthorized copying and replication of the contents of this site, text and images are strictly prohibited.
ここがポイント!
注目のポイント
- 〇広々とした土地約63坪の戸建て
- 〇整備された閑静な住宅街
日本マウント株式会社からのメッセージ
- 川越市川鶴3丁目に、広々とした土地約63坪の戸建て物件が登場です。
前面道路6.0mの公道に面し、整備された閑静な住宅街で、落ち着いた暮らしが実現できます。
車庫付きでお車の出し入れもスムーズ。
さらに目の前には広い公園があり、子育て世帯にも安心の住環境です。
〇周辺環境
ファミリーマート かわつる三芳野店・・約240m
エコス TAIRAYA川 店・・・約840m
川越プラザクリニック・・・・約640m
川鶴ひばり幼稚園・ 約270m
こだわり一覧
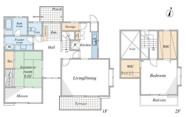
この物件の詳細
| 物件ID / 管理番号 | 4576 / 1743 |
|---|---|
| 所在地 | 埼玉県川越市川鶴 |
| 交通 |
東武東上線「鶴ヶ島」駅 バス15分 「川鶴三芳野」 停歩3分 川越線「笠幡」駅 徒歩22分 |
| 土地面積 | (公簿) 209.95m2 |
| 建物構造 | 木造 |
| 建物規模 | 地上階数 2階 |
| 建物面積 | 98.92m2 |
| 土地権利 | 所有権 |
| 地目 | 宅地 |
| 都市計画 | 市街化区域 |
| 用途地域 | 第二種低層住居専用地域 |
| 建ぺい率 | 60% |
| 容積率 | 200% |
| 築年月 | 昭和59年 / 1984年 2月 |
| 駐車場 | あり |
| 建物現況 | 空き家 |
| 引渡時期 | 即時 |
| 引渡条件 | 現況渡 |
| 接道状況 |
一方(北 公道 6.0m) |
| 設備1 | 公営水道 本下水 都市ガス 電気 |
| 設備2 | |
| その他設備 | カースペース 南庭 エアコン 広縁 テラス ウォークインクローゼット 吹抜 |
| 備考(その他情報) | ※図面と現況が異なる場合、現況を優先とさせていただきます。 |
| 取引態様 | 仲介 |
この物件は日本マウント株式会社が取り扱っています
この物件の周辺地図
【ご注意】現地の場所は必ずしも正確ではなく、”大体の場所”を示していることがありますので、一度お問い合わせください。
この物件のお問い合わせはこちら
情報提供会社
日本マウント株式会社
- 所在地
- 東京都品川区平塚2-5-8五反田ミカドビル3F
- 加盟団体
- <社>全日本不動産協会
- 免許番号
- 東京都知事(4)第87982号
- 会社メッセージ
-
相続のお悩み、移住、都内への引っ越し、日本マウントグループは、ワンストップで不動産トラブルの難題を解決してきました。
田舎暮らし物件、リゾート物件を扱う日本マウント株式会社と、東京を中心に一都三県の都心の物件を扱う株式会社首都圏不動産販売。
そして、相続問題、税金問題、不動産問題を解決に導くアイレス株式会社の3社があなたの悩みを解決します。
日本マウントは主な事業として、那須・安曇野・八ヶ岳・富士五湖・南房総等の中古別荘や、長野県、山梨県、栃木県、茨城県、千葉県、静岡県の中古住宅、田舎暮らし向きの住宅の売買・仲介をしております。
また、物件の買取・調査・管理も行っています。田舎暮らしのお手伝いもいたします。
物件数も日々増えていきますので、リーズナブルな優良物件を見逃さないよう、当社ホームページを小まめにご覧いただければと思います。
関連する物件
この物件に類似するものをピックアップしてみました。


























































