山武市 成東 中古住宅 4LDK 5,880万円
千葉県 山武市 〇開放的なアイランドキッチンが印象的
管理番号9708
物件ID4514
日本マウント株式会社
※当サイトの写真を無断で使用、アップロードすることはご遠慮ください。
※Unauthorized copying and replication of the contents of this site, text and images are strictly prohibited.
ここがポイント!
注目のポイント
- 〇開放的なアイランドキッチンが印象的
- 〇1坪以上のゆったり浴室
日本マウント株式会社からのメッセージ
- 開放的なアイランドキッチンが印象的で、家族との会話を楽しみながら料理ができる空間。
ダイニングには自然と笑顔が集まります。
また、1坪以上のゆったり浴室は一日の疲れを癒すくつろぎの場。
プロパンガス採用で、災害時も復旧が比較的早く安心です。
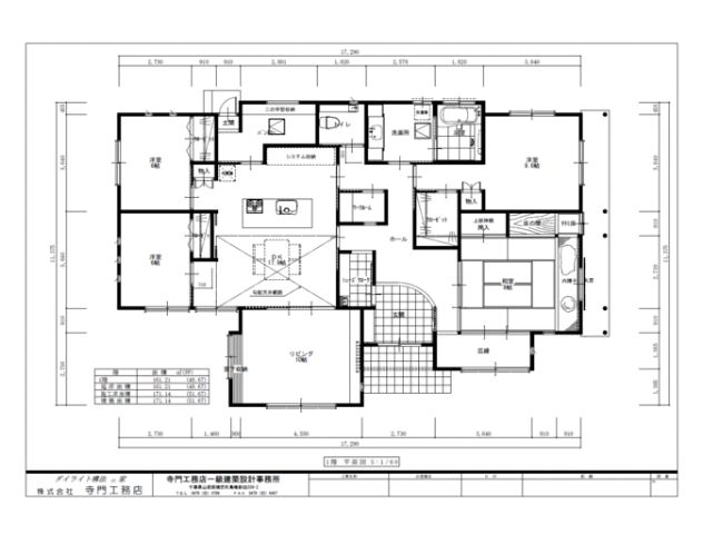
4LDKの間取りは、家族それぞれのプライベートも大切にできるゆとりの設計。
百聞は一見にしかず──ぜひ現地で、この住まいの魅力をご体感ください。
〇周辺環境
・MEGAドン・キホーテ 120m
・セブンイレブン成東バイパス店 700m
・成東小学校 750m
・さんむ医療センター 1.2km
こだわり一覧
平屋
この物件の詳細
| 物件ID / 管理番号 | 4514 / 9708 |
|---|---|
| 所在地 | 千葉県山武市成東 |
| 交通 |
JR総武本線 / 成東駅 徒歩25分 |
| 土地面積 | (公簿) 523m2 |
| 建物構造 | 木造 |
| 建物規模 | 地上階数 1階 |
| 土地権利 | 所有権 |
| 地目 | 宅地 |
| 都市計画 | 非線引区域 |
| 建ぺい率 | 60% |
| 容積率 | 200% |
| 築年月 | 令和3年 / 2021年 5月 |
| 駐車場 | あり |
| 建物現況 | 使用中 |
| 引渡時期 | 相談 |
| 引渡条件 | 現況渡 |
| 接道状況 |
東 5.7m 公道 接面5.7m |
| 設備1 | 上水道 浄化槽 プロパンガス 電気 |
| 設備2 | |
| その他設備 | アイランドキッチン |
| 備考(その他情報) | 〇その他 モデルハウスとして使用中のため、未入居で綺麗な状態です。 ご案内可能ですのでお気軽にお問い合わせください。 |
| 取引態様 | 仲介 |
この物件は日本マウント株式会社が取り扱っています
この物件の周辺地図
【ご注意】現地の場所は必ずしも正確ではなく、”大体の場所”を示していることがありますので、一度お問い合わせください。
この物件のお問い合わせはこちら
情報提供会社
日本マウント株式会社
- 所在地
- 東京都品川区平塚2-5-8五反田ミカドビル3F
- 加盟団体
- <社>全日本不動産協会
- 免許番号
- 東京都知事(4)第87982号
- 会社メッセージ
-
相続のお悩み、移住、都内への引っ越し、日本マウントグループは、ワンストップで不動産トラブルの難題を解決してきました。
田舎暮らし物件、リゾート物件を扱う日本マウント株式会社と、東京を中心に一都三県の都心の物件を扱う株式会社首都圏不動産販売。
そして、相続問題、税金問題、不動産問題を解決に導くアイレス株式会社の3社があなたの悩みを解決します。
日本マウントは主な事業として、那須・安曇野・八ヶ岳・富士五湖・南房総等の中古別荘や、長野県、山梨県、栃木県、茨城県、千葉県、静岡県の中古住宅、田舎暮らし向きの住宅の売買・仲介をしております。
また、物件の買取・調査・管理も行っています。田舎暮らしのお手伝いもいたします。
物件数も日々増えていきますので、リーズナブルな優良物件を見逃さないよう、当社ホームページを小まめにご覧いただければと思います。
関連する物件
この物件に類似するものをピックアップしてみました。






































