小田原市 南町 中古別荘 3SLLDK 22,000万円
神奈川県 小田原市 自然素材の家 小田原城の南に佇む、敷地596㎡超えの築浅デザイナーズ
管理番号1854
物件ID4787
日本マウント株式会社
※当サイトの写真を無断で使用、アップロードすることはご遠慮ください。
※Unauthorized copying and replication of the contents of this site, text and images are strictly prohibited.
ここがポイント!
注目のポイント
- 小田原城の南に佇む、敷地596㎡超えの築浅デザイナーズ
- インナーテラスや屋上空間、開放的な眺望も楽しめる設計
- 別荘やセカンドハウス、民泊など多彩な用途に活用可能
日本マウント株式会社からのメッセージ
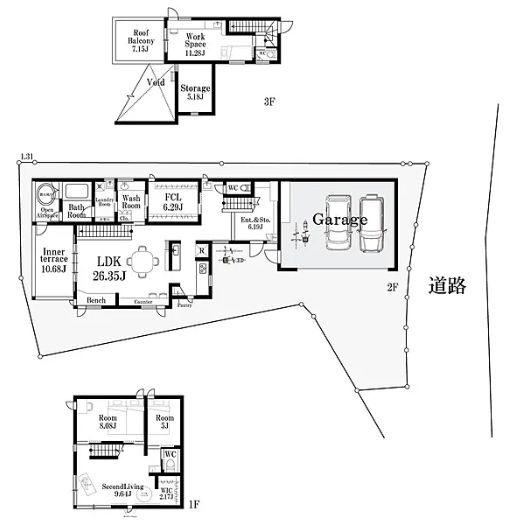
- 〇小田原の歴史と自然に寄り添う南町エリアに佇む、大型デザイナーズ邸宅。
敷地約596㎡、建物225㎡超のゆとりあるスケールに、木の温もりを活かした開放的な空間設計が魅力です。
吹き抜けのあるリビングや印象的な玄関ホールなど、上質な時間を演出する住まい。小田原駅徒歩約17分の立地で、居住用はもちろん、週末の拠点や別荘、民泊など多彩な用途に対応できる一邸です。
◇周辺環境◇
・小田原市立三の丸小学校 約460m
・セブンイレブン小田原南町店 約503m
・小田原百貨店板橋店 約754m
・医療法人社団綾和会間中病院 約700m
・ミナカ小田原(商業複合施設) 約1,081m
こだわり一覧
自然デザイン
この物件の詳細
| 物件ID / 管理番号 | 4787 / 1854 |
|---|---|
| 所在地 | 神奈川県小田原市南町1丁目 |
| 交通 |
JR東海道本線「小田原」駅より 徒歩17分 箱根登山鉄道「箱根板橋」駅より 徒歩12分 |
| 土地面積 | (公簿) 596.34m2 |
| 建物構造 | 木造 |
| 建物規模 | 地上階数 2階 地下階数 1階 |
| 建物面積 | 225.42m2 |
| 土地権利 | 所有権 |
| 地目 | 宅地 |
| 都市計画 | 市街化区域 |
| 用途地域 | 第一種中高層住居専用地域 |
| 建ぺい率 | 60% |
| 容積率 | 200% |
| 築年月 | 令和5年 / 2023年 3月 |
| 駐車場 | あり ガレージ2台分、計3台分 |
| 建物現況 | 空き家 |
| 土地現況 | 建物あり |
| 引渡時期 | 相談 |
| 引渡条件 | 現況渡 |
| 接道状況 |
北 間口16.8m
公道 幅員5.9m
|
| 設備1 | 上水道 本下水 電気 |
| 設備2 | オール電化 独立型キッチン IHクッキングヒーター トイレ2か所以上 温水洗浄便座 ウォークインクローゼット ウッドデッキ テラス 駐車2台以上 ビルトインガレージ TVモニタ付きインターホン |
| その他設備 | アイランドキッチン、食器洗浄乾燥機、パントリー、リビング2カ所、天井高2.5m以上、タンクレストイレ、浴室1.6×1.8m以上、ファミリークローゼット、ルーフバルコニー、インナーテラス、専用庭、10平米以上の庭、ウッドデッキ、屋上、温泉付、2面採光、デザイナーズ、24時間セキュリティ、オーシャンビュー、眺望良好 |
| 備考(その他情報) | ■図面と現況が異なる場合は現況優先します。 |
| 取引態様 | 仲介 |
この物件は日本マウント株式会社が取り扱っています
この物件の周辺地図
【ご注意】現地の場所は必ずしも正確ではなく、”大体の場所”を示していることがありますので、一度お問い合わせください。
この物件のお問い合わせはこちら
情報提供会社
日本マウント株式会社
- 所在地
- 東京都品川区平塚2-5-8五反田ミカドビル3F
- 加盟団体
- <社>全日本不動産協会
- 免許番号
- 東京都知事(4)第87982号
- 会社メッセージ
-
相続のお悩み、移住、都内への引っ越し、日本マウントグループは、ワンストップで不動産トラブルの難題を解決してきました。
田舎暮らし物件、リゾート物件を扱う日本マウント株式会社と、東京を中心に一都三県の都心の物件を扱う株式会社首都圏不動産販売。
そして、相続問題、税金問題、不動産問題を解決に導くアイレス株式会社の3社があなたの悩みを解決します。
日本マウントは主な事業として、那須・安曇野・八ヶ岳・富士五湖・南房総等の中古別荘や、長野県、山梨県、栃木県、茨城県、千葉県、静岡県の中古住宅、田舎暮らし向きの住宅の売買・仲介をしております。
また、物件の買取・調査・管理も行っています。田舎暮らしのお手伝いもいたします。
物件数も日々増えていきますので、リーズナブルな優良物件を見逃さないよう、当社ホームページを小まめにご覧いただければと思います。
関連する物件
この物件に類似するものをピックアップしてみました。











































