足柄下郡箱根町 仙石原 中古別荘 4LDK 19,800万円
神奈川県 足柄下郡箱根町 〇リフォーム済みの大型別荘
管理番号1846
物件ID4779
日本マウント株式会社
※当サイトの写真を無断で使用、アップロードすることはご遠慮ください。
※Unauthorized copying and replication of the contents of this site, text and images are strictly prohibited.
ここがポイント!
注目のポイント
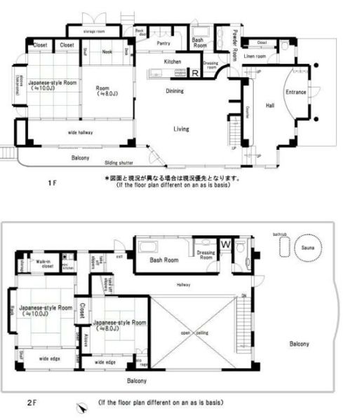
- 〇リフォーム済みの大型別荘
- 〇本格的なサウナあり
日本マウント株式会社からのメッセージ
- 人気の箱根・仙石原エリアに位置する、リフォーム済みの大型別荘のご紹介です。
ゆとりある広い敷地に建つ邸宅で、自然に囲まれた落ち着いた住環境が魅力です。
室内はリフォーム済みで、快適にお使いいただける状態。
さらに本格的なサウナも備えており、箱根の自然を感じながらプライベートなリラクゼーション空間をお楽しみいただけます。
周辺にはゴルフ場も多く、ゴルフ好きの方の別荘としても最適な立地。
四季折々の自然を感じながら、ゆったりとした箱根ライフを満喫できます。
別荘利用はもちろん、保養施設やセカンドハウスとしてもおすすめの物件です。
こだわり一覧
500m
この物件の詳細
| 物件ID / 管理番号 | 4779 / 1846 |
|---|---|
| 所在地 | 神奈川県足柄下郡箱根町仙石原 |
| 交通 |
箱根登山鉄道線 強羅駅 7,200m |
| 土地面積 | (公簿) 4,090m2 |
| 建物構造 | 鉄骨造 |
| 建物規模 | 地上階数 2階 |
| 建物面積 | 244.88m2 |
| 土地権利 | 所有権 |
| 地目 | 山林 |
| 都市計画 | 非線引区域 |
| 用途地域 | 第二種低層住居専用地域 |
| 建ぺい率 | 20% |
| 容積率 | 40% |
| 築年月 | 平成元年 / 1989年 9月 |
| 法令上の制限 | 宅地造成及特定盛土等規制法・富士箱根国立公園第2種特別地域 箱根町景観条例・景観法・神奈川県屋外広告物条例禁止区域・土砂災害警戒区域 高さ10m以下、緑地70%以上、壁面後退5m以上 |
| 駐車場 | あり 2台 |
| 建物現況 | 空き家 |
| 引渡時期 | 相談 |
| 引渡条件 | 現況渡 |
| 接道状況 |
角地 |
| 設備1 | 都市ガス |
| 設備2 | トイレ2か所以上 TVモニタ付きインターホン |
| その他設備 | 南向き 閑静な住宅街 システムキッチン 二世帯向き |
| 取引態様 | 仲介 |
この物件は日本マウント株式会社が取り扱っています
この物件の周辺地図
【ご注意】現地の場所は必ずしも正確ではなく、”大体の場所”を示していることがありますので、一度お問い合わせください。
この物件のお問い合わせはこちら
情報提供会社
日本マウント株式会社
- 所在地
- 東京都品川区平塚2-5-8五反田ミカドビル3F
- 加盟団体
- <社>全日本不動産協会
- 免許番号
- 東京都知事(4)第87982号
- 会社メッセージ
-
相続のお悩み、移住、都内への引っ越し、日本マウントグループは、ワンストップで不動産トラブルの難題を解決してきました。
田舎暮らし物件、リゾート物件を扱う日本マウント株式会社と、東京を中心に一都三県の都心の物件を扱う株式会社首都圏不動産販売。
そして、相続問題、税金問題、不動産問題を解決に導くアイレス株式会社の3社があなたの悩みを解決します。
日本マウントは主な事業として、那須・安曇野・八ヶ岳・富士五湖・南房総等の中古別荘や、長野県、山梨県、栃木県、茨城県、千葉県、静岡県の中古住宅、田舎暮らし向きの住宅の売買・仲介をしております。
また、物件の買取・調査・管理も行っています。田舎暮らしのお手伝いもいたします。
物件数も日々増えていきますので、リーズナブルな優良物件を見逃さないよう、当社ホームページを小まめにご覧いただければと思います。
関連する物件
この物件に類似するものをピックアップしてみました。


















































