佐久市 小田井 「西軽井沢ヴィレッジ」 戸建て 1LDK 3,280万円
長野県 佐久市 〇佐久市小田井エリア 全4戸の共用庭付き建売分譲地
管理番号44986
物件ID4775
日本マウント株式会社
※当サイトの写真を無断で使用、アップロードすることはご遠慮ください。
※Unauthorized copying and replication of the contents of this site, text and images are strictly prohibited.
ここがポイント!
注目のポイント
- 〇佐久市小田井エリア 全4戸の共用庭付き建売分譲地
- 〇御代田付近に位置する好立地
- 〇BBQも楽しめる300坪の共用庭
- 〇セカンドハウスや民泊利用も可
日本マウント株式会社からのメッセージ
- 都会ではなかなか実現できない約300坪のシェアガーデンが魅力の物件です。
敷地内はフェンス付きで、愛犬が安心して遊べるドッグスペースとしても利用可能。庭の中央にはアウトドアキッチンがあり、居住者同士でBBQなども楽しめます。
室内は自由にカスタマイズできるスケルトンハウス仕様。
愛犬専用スペースの設置や間仕切りの追加など、ライフスタイルに合わせた住まいづくりが可能です。
外断熱仕様・断熱等級5、太陽光発電も搭載しており、快適性と省エネ性を備えています。
御代田まで車で約10分、軽井沢へ約20分、佐久平駅へ約13分とアクセスも良好。ご自身の利用はもちろん、使用しない期間は民泊としての運用も検討できます。
こだわり一覧
ペット500m
この物件の詳細
| 物件ID / 管理番号 | 4775 / 44986 |
|---|---|
| 所在地 | 長野県佐久市小田井 |
| 交通 |
しなの鉄道「御代田」駅まで徒歩34分 車で7分 北陸新幹線・小海線「佐久平」駅より車で14分 |
| 土地面積 | (公簿) 345.12m2 |
| 建物構造 | 木造 |
| 建物規模 | 地上階数 2階 |
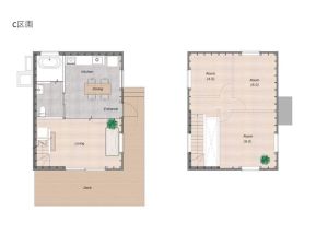
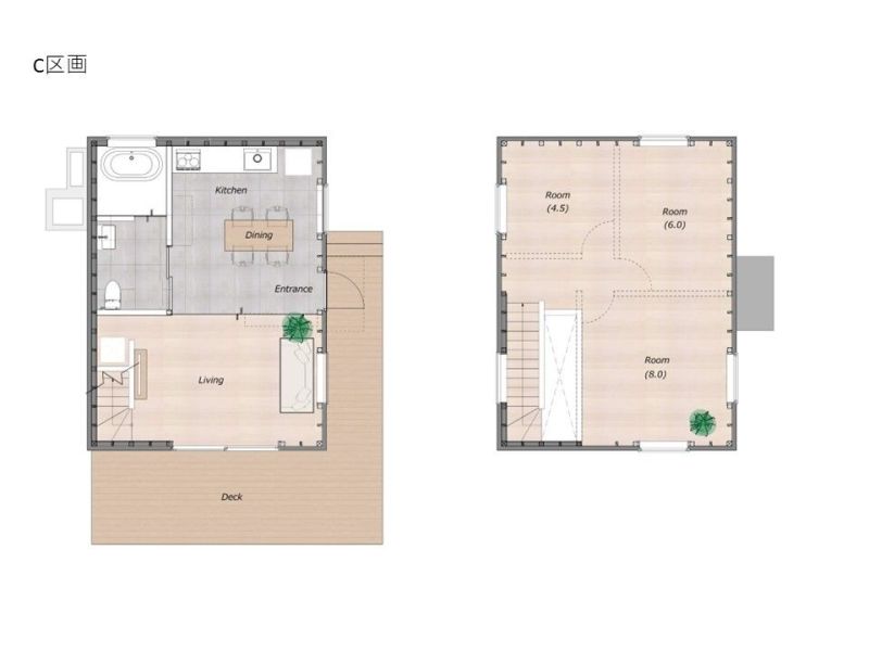
| 建物面積 | 79.42m2 |
| 土地権利 | 所有権 |
| 地目 | 宅地 |
| 都市計画 | 市街化区域 |
| 用途地域 | 第一種住居地域 |
| 建ぺい率 | 60% |
| 容積率 | 200% |
| 地勢 | 平坦 |
| 築年月 | 平成25年 / 2013年 5月 |
| 建物現況 | 未使用 |
| 引渡時期 | 相談 |
| 引渡条件 | 現況渡 |
| 接道状況 |
東 間口4.5m
公道 幅員4m
|
| 設備1 | |
| 設備2 | |
| その他設備 | 浴室乾燥機、追焚機能、温水洗浄便座、浴室に窓あり、IHクッキングヒーター、3口以上コンロ モニター付インターホン、ディンプルキー、庭、ウッドデッキ、火災警報器(報知機)、複層ガラス、Low-E ガラス |
| 備考(その他情報) | A:271.86㎡ / B:272.95㎡ / C:345.12㎡ / D:267.41㎡ 主要採光面:南向き 建築確認完了検査済証あり |
| 取引態様 | 仲介 |
この物件は日本マウント株式会社が取り扱っています
この物件の周辺地図
【ご注意】現地の場所は必ずしも正確ではなく、”大体の場所”を示していることがありますので、一度お問い合わせください。
この物件のお問い合わせはこちら
情報提供会社
日本マウント株式会社
- 所在地
- 東京都品川区平塚2-5-8五反田ミカドビル3F
- 加盟団体
- <社>全日本不動産協会
- 免許番号
- 東京都知事(4)第87982号
- 会社メッセージ
-
相続のお悩み、移住、都内への引っ越し、日本マウントグループは、ワンストップで不動産トラブルの難題を解決してきました。
田舎暮らし物件、リゾート物件を扱う日本マウント株式会社と、東京を中心に一都三県の都心の物件を扱う株式会社首都圏不動産販売。
そして、相続問題、税金問題、不動産問題を解決に導くアイレス株式会社の3社があなたの悩みを解決します。
日本マウントは主な事業として、那須・安曇野・八ヶ岳・富士五湖・南房総等の中古別荘や、長野県、山梨県、栃木県、茨城県、千葉県、静岡県の中古住宅、田舎暮らし向きの住宅の売買・仲介をしております。
また、物件の買取・調査・管理も行っています。田舎暮らしのお手伝いもいたします。
物件数も日々増えていきますので、リーズナブルな優良物件を見逃さないよう、当社ホームページを小まめにご覧いただければと思います。
関連する物件
この物件に類似するものをピックアップしてみました。
























































