相模原市緑区 日連 中古住宅 5LDK+S(納戸) 3,780万円
神奈川県 相模原市緑区 〇鉄骨造3階建居宅+店舗
管理番号1817
物件ID4746
日本マウント株式会社
※当サイトの写真を無断で使用、アップロードすることはご遠慮ください。
※Unauthorized copying and replication of the contents of this site, text and images are strictly prohibited.
ここがポイント!
注目のポイント
- 〇鉄骨造3階建居宅+店舗
- 〇湖畔の絶景地です
日本マウント株式会社からのメッセージ
- 湖畔を望むロケーションで、お店と店舗を同時販売中です。
お店を経営したい方におすすめの物件です。
こだわり一覧
店舗湖池川
この物件の詳細
| 物件ID / 管理番号 | 4746 / 1817 |
|---|---|
| 所在地 | 神奈川県相模原市緑区日連 |
| 交通 |
JR中央線「藤野」駅 徒歩12分 |
| 土地面積 | (公簿) 570.58m2 |
| 建物構造 | 鉄骨造 |
| 建物規模 | 地上階数 3階 |
| 土地権利 | 所有権 |
| 地目 | 宅地 |
| 都市計画 | 非線引区域 |
| 用途地域 | 第一種住居地域 |
| 建ぺい率 | 60% |
| 容積率 | 200% |
| 地勢 | 平坦 |
| 築年月 | 平成11年 / 1999年 3月 |
| 駐車場 | あり |
| 建物現況 | 居住中 |
| 引渡時期 | 相談 |
| 引渡条件 | 現況渡 |
| 接道状況 |
南東10.8m 公道 接面23.0m |
| 設備1 | 上水道 浄化槽 プロパンガス 電気 |
| 設備2 | |
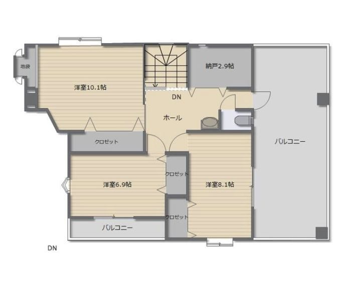
| その他設備 | システムキッチン 全居室収納 エアコン2台以上 クローゼット 3口以上コンロ グリル オートバス 追焚機能 高温差湯式 シャワー付洗面化粧台 出窓 ワイドバルコニー 照明器具 インターネット対応 CS BS端子 トイレ2ヶ所 浴室に窓あり |
| 備考(その他情報) | ■バルコニー:あり ■主要採光面:南東向き ■建築確認完了検査済証あり ■新築時・増改築時の設計図書あり ■同時販売 併設店舗木造亜鉛メッキ鋼板ぶき2階建て1階62.40㎡、2階60.46㎡ 昭和53年11月築、平成10年9月改築飲食店盛業中 現況有姿 契約不適合責任免責 |
| 取引態様 | 仲介 |
この物件は日本マウント株式会社が取り扱っています
この物件の周辺地図
【ご注意】現地の場所は必ずしも正確ではなく、”大体の場所”を示していることがありますので、一度お問い合わせください。
この物件のお問い合わせはこちら
情報提供会社
日本マウント株式会社
- 所在地
- 東京都品川区平塚2-5-8五反田ミカドビル3F
- 加盟団体
- <社>全日本不動産協会
- 免許番号
- 東京都知事(4)第87982号
- 会社メッセージ
-
相続のお悩み、移住、都内への引っ越し、日本マウントグループは、ワンストップで不動産トラブルの難題を解決してきました。
田舎暮らし物件、リゾート物件を扱う日本マウント株式会社と、東京を中心に一都三県の都心の物件を扱う株式会社首都圏不動産販売。
そして、相続問題、税金問題、不動産問題を解決に導くアイレス株式会社の3社があなたの悩みを解決します。
日本マウントは主な事業として、那須・安曇野・八ヶ岳・富士五湖・南房総等の中古別荘や、長野県、山梨県、栃木県、茨城県、千葉県、静岡県の中古住宅、田舎暮らし向きの住宅の売買・仲介をしております。
また、物件の買取・調査・管理も行っています。田舎暮らしのお手伝いもいたします。
物件数も日々増えていきますので、リーズナブルな優良物件を見逃さないよう、当社ホームページを小まめにご覧いただければと思います。
関連する物件
この物件に類似するものをピックアップしてみました。






























































