北杜市 明野町上手 中古住宅 2LDK 2,650万円
山梨県 北杜市 〇平屋建ての2LDK物件
管理番号5478
物件ID4693
日本マウント株式会社
※当サイトの写真を無断で使用、アップロードすることはご遠慮ください。
※Unauthorized copying and replication of the contents of this site, text and images are strictly prohibited.
ここがポイント!
注目のポイント
- 〇平屋建ての2LDK物件
日本マウント株式会社からのメッセージ
- 北杜市明野町上手に位置する平屋建ての2LDK物件のご紹介です。
広々としたリビング・ダイニング・キッチンは、自然光が差し込み、明るく開放的な空間。。
屋根付き駐車スペース完備で、雨や雪の日も安心。
平屋建てのため、階段の上り下りがなく、シニア世代や小さなお子様のいるご家庭にもおすすめです
こだわり一覧
平屋500m
この物件の詳細
| 物件ID / 管理番号 | 4693 / 5478 |
|---|---|
| 所在地 | 山梨県北杜市明野町上手 |
| 交通 |
中央本線 韮崎駅から約8.3km 車で15分 中央自動車道 須玉ICから約4.3km 車で7分 |
| 土地面積 | (公簿) 419.87m2 |
| 建物構造 | 木造 |
| 建物規模 | 地上階数 1階 |
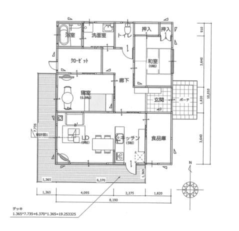
| 建物面積 | 81.98m2 |
| 土地権利 | 所有権 |
| 地目 | 宅地 |
| 都市計画 | 都市計画区域外 |
| 用途地域 | 無指定 |
| 築年月 | 平成29年 / 2017年 11月 |
| 駐車場 | あり |
| 建物現況 | 居住中 |
| 引渡時期 | 相談 |
| 引渡条件 | 現況渡 |
| 接道状況 |
東 3.1m |
| 設備1 | 上水道 本下水 電気 |
| 設備2 | オール電化 対面キッチン IHクッキングヒーター 温水洗浄便座 収納スペース ウォークインクローゼット エアコン ウッドデッキ 浴室乾燥機あり |
| その他設備 | 浴室暖房、シャワー付洗面化粧台、浴室に窓あり、システムキッチン、グリル、エアコン2台以上、シャッター雨戸、火災警報器(報知機)、掘ごたつ |
| 備考(その他情報) | 〇その他 主要採光面:南向き 新築時・増改築時の設計図書あり 土地面積:127.01坪・建物面積:24.79坪 家庭菜園有り 北杜市まちづくり条例(田園集落区域に該当します) 北杜市景観条例(田園集落景観形成地域) 道路共有持分有り |
| 取引態様 | 仲介 |
この物件は日本マウント株式会社が取り扱っています
この物件の周辺地図
【ご注意】現地の場所は必ずしも正確ではなく、”大体の場所”を示していることがありますので、一度お問い合わせください。
この物件のお問い合わせはこちら
情報提供会社
日本マウント株式会社
- 所在地
- 東京都品川区平塚2-5-8五反田ミカドビル3F
- 加盟団体
- <社>全日本不動産協会
- 免許番号
- 東京都知事(4)第87982号
- 会社メッセージ
-
相続のお悩み、移住、都内への引っ越し、日本マウントグループは、ワンストップで不動産トラブルの難題を解決してきました。
田舎暮らし物件、リゾート物件を扱う日本マウント株式会社と、東京を中心に一都三県の都心の物件を扱う株式会社首都圏不動産販売。
そして、相続問題、税金問題、不動産問題を解決に導くアイレス株式会社の3社があなたの悩みを解決します。
日本マウントは主な事業として、那須・安曇野・八ヶ岳・富士五湖・南房総等の中古別荘や、長野県、山梨県、栃木県、茨城県、千葉県、静岡県の中古住宅、田舎暮らし向きの住宅の売買・仲介をしております。
また、物件の買取・調査・管理も行っています。田舎暮らしのお手伝いもいたします。
物件数も日々増えていきますので、リーズナブルな優良物件を見逃さないよう、当社ホームページを小まめにご覧いただければと思います。
関連する物件
この物件に類似するものをピックアップしてみました。















































