南都留郡山中湖村 平野 中古住宅 3LDK 4,980万円
山梨県 南都留郡山中湖村 富士山が見える 〇民泊可能、富士山眺望
管理番号5475
物件ID4689
日本マウント株式会社
※当サイトの写真を無断で使用、アップロードすることはご遠慮ください。
※Unauthorized copying and replication of the contents of this site, text and images are strictly prohibited.
ここがポイント!
注目のポイント
- 〇民泊可能、富士山眺望
- 〇利回り高い
- 〇山中湖畔道路700m
日本マウント株式会社からのメッセージ
- 【周辺環境】
◇コンビニ
セブンイレブン山梨山中湖平野店 (2,299m)
◇レジャー・観光
瑞穂テニスクラブ (1,346m)
山中湖美術館 (1,841m)
◇郵便局
平野簡易郵便局 (2,237m)
こだわり一覧
富士山1000m民泊可
この物件の詳細
| 物件ID / 管理番号 | 4689 / 5475 |
|---|---|
| 所在地 | 山梨県南都留郡山中湖村平野 |
| 交通 |
富士急行線「富士山」駅より約1.5㎞ 東富士五湖道路「山中湖」ICから車で約20分 |
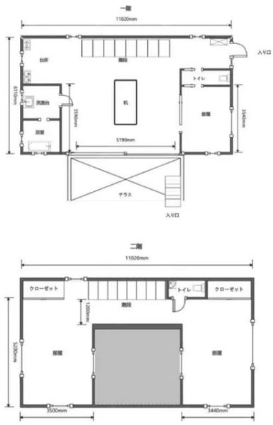
| 土地面積 | (公簿) 821m2 |
| 建物構造 | 木造 |
| 建物規模 | 地上階数 2階 |
| 建物面積 | 121.44m2 |
| 土地権利 | 所有権 |
| 地目 | 宅地 |
| 都市計画 | 非線引区域 |
| 用途地域 | 無指定 |
| 築年月 | 平成7年 / 1995年 1月 |
| 駐車場 | あり (2台) |
| 建物現況 | 空き家 |
| 引渡時期 | 相談 |
| 引渡条件 | 現況渡 |
| 接道状況 | |
| 設備1 | 上水道 本下水 電気 |
| 設備2 |
【リフォーム履歴】 実施時期:令和7年 / 2025年 12月 実施内容: 内装(全面(床・壁・天井・建具)) |
| その他設備 | トイレ2ヶ所、温水洗浄便座、オートバス 浴室に窓、オープンキッチン、クローゼット、照明器具 前面棟無、全室2面採光、隣接建物距離2m以上 |
| 備考(その他情報) | 小学校:山中湖村立東小学校 3,686m オーナーチェンジ 年間予定賃料収入 597.6万円 年間予定利回り 12% |
| 取引態様 | 仲介 |
| 民泊運営の可否 | 民泊可能 |
この物件は日本マウント株式会社が取り扱っています
この物件の周辺地図
【ご注意】現地の場所は必ずしも正確ではなく、”大体の場所”を示していることがありますので、一度お問い合わせください。
この物件のお問い合わせはこちら
情報提供会社
日本マウント株式会社
- 所在地
- 東京都品川区平塚2-5-8五反田ミカドビル3F
- 加盟団体
- <社>全日本不動産協会
- 免許番号
- 東京都知事(4)第87982号
- 会社メッセージ
-
相続のお悩み、移住、都内への引っ越し、日本マウントグループは、ワンストップで不動産トラブルの難題を解決してきました。
田舎暮らし物件、リゾート物件を扱う日本マウント株式会社と、東京を中心に一都三県の都心の物件を扱う株式会社首都圏不動産販売。
そして、相続問題、税金問題、不動産問題を解決に導くアイレス株式会社の3社があなたの悩みを解決します。
日本マウントは主な事業として、那須・安曇野・八ヶ岳・富士五湖・南房総等の中古別荘や、長野県、山梨県、栃木県、茨城県、千葉県、静岡県の中古住宅、田舎暮らし向きの住宅の売買・仲介をしております。
また、物件の買取・調査・管理も行っています。田舎暮らしのお手伝いもいたします。
物件数も日々増えていきますので、リーズナブルな優良物件を見逃さないよう、当社ホームページを小まめにご覧いただければと思います。
関連する物件
この物件に類似するものをピックアップしてみました。









































