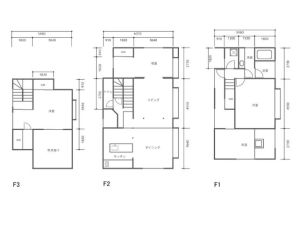
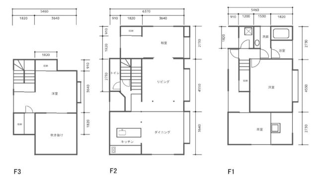
足柄下郡箱根町 仙石原 中古住宅 4LDK 4,300万円
神奈川県 足柄下郡箱根町 2025年11月新規リノベーション済、山奥にひっそりと佇む4LDK
管理番号1775
物件ID4680
日本マウント株式会社
※当サイトの写真を無断で使用、アップロードすることはご遠慮ください。
※Unauthorized copying and replication of the contents of this site, text and images are strictly prohibited.
ここがポイント!
注目のポイント
- 2025年11月新規リノベーション済、山奥にひっそりと佇む4LDK
- 全居室南向き・高級旅館を思わせるノスタルジックな装い
こだわり一覧
500m
この物件の詳細
| 物件ID / 管理番号 | 4680 / 1775 |
|---|---|
| 所在地 | 神奈川県足柄下郡箱根町仙石原 |
| 交通 |
箱根登山鉄道「強羅」駅よりバス乗車 約20分「仙石」停徒歩 約14分 |
| 土地面積 | (公簿) 1,064.5m2 |
| 建物規模 | 地上階数 3階 |
| 建物面積 | 146.55m2 |
| 土地権利 | 所有権 |
| 地目 | 宅地 |
| 都市計画 | 非線引区域 |
| 用途地域 | 第一種低層住居専用地域 |
| 建ぺい率 | 20% |
| 容積率 | 40% |
| 地勢 | 傾斜地 |
| 築年月 | 昭和63年 / 1988年 9月 |
| 駐車場 | あり |
| 建物現況 | 居住中 |
| 引渡時期 | 相談 |
| 引渡条件 | 現況渡 |
| 接道状況 | 私道 |
| 設備1 | 集中浄化槽 プロパンガス |
| 設備2 | |
| その他設備 | 広々キッチン 浴室暖房乾燥機 浴室に窓 エアコン FFファンヒーター カライエ 露天風呂 |
| 備考(その他情報) | ■管理会社:株式会社ナカノフドー建設 ■維持費・諸費用 ・管理費:20,000円(不課税)/2ヶ月毎 ・修繕積立金:14,000円(不課税)/2ヶ月毎・ ・水道基本料(10㎥まで):4,000円(不課税)/2ヶ月毎 ・口座振替手数料:150円/2ヶ月毎 ・共益施設分担金:500,000円(非課税)、一時金 ・水道引込加入金:350,000円(非課税)/一時金 ・温泉/引込可(権利金:4,300,000円別途要)、工事費別途要(温泉区分:詳細等調査中) ※修繕積立金は道路・水道管等の施設維持費です。 ※建物総面積に基づく管理費、水道基本料をはじめとする支払いの金額については、ご所有形態(法人・個人)により異なります。 ※建物の設備補償と契約不適合責任は免責です。 ※再建築:不可 |
| 取引態様 | 仲介 |
この物件は日本マウント株式会社が取り扱っています
この物件の周辺地図
【ご注意】現地の場所は必ずしも正確ではなく、”大体の場所”を示していることがありますので、一度お問い合わせください。
この物件のお問い合わせはこちら
情報提供会社
日本マウント株式会社
- 所在地
- 東京都品川区平塚2-5-8五反田ミカドビル3F
- 加盟団体
- <社>全日本不動産協会
- 免許番号
- 東京都知事(4)第87982号
- 会社メッセージ
-
相続のお悩み、移住、都内への引っ越し、日本マウントグループは、ワンストップで不動産トラブルの難題を解決してきました。
田舎暮らし物件、リゾート物件を扱う日本マウント株式会社と、東京を中心に一都三県の都心の物件を扱う株式会社首都圏不動産販売。
そして、相続問題、税金問題、不動産問題を解決に導くアイレス株式会社の3社があなたの悩みを解決します。
日本マウントは主な事業として、那須・安曇野・八ヶ岳・富士五湖・南房総等の中古別荘や、長野県、山梨県、栃木県、茨城県、千葉県、静岡県の中古住宅、田舎暮らし向きの住宅の売買・仲介をしております。
また、物件の買取・調査・管理も行っています。田舎暮らしのお手伝いもいたします。
物件数も日々増えていきますので、リーズナブルな優良物件を見逃さないよう、当社ホームページを小まめにご覧いただければと思います。
関連する物件
この物件に類似するものをピックアップしてみました。










































