伊東市 八幡野 「伊豆急伊豆高原分譲地」 中古別荘 2LDK 8,999万円
静岡県 伊東市 温泉・サウナ・プール すべてを愉しむ伊豆のリゾート邸宅
管理番号1750
物件ID4623
日本マウント株式会社
※当サイトの写真を無断で使用、アップロードすることはご遠慮ください。
※Unauthorized copying and replication of the contents of this site, text and images are strictly prohibited.
ここがポイント!
注目のポイント
- 温泉・サウナ・プール すべてを愉しむ伊豆のリゾート邸宅
- 築浅・駐車場は3台分完備
こだわり一覧
この物件の詳細
| 物件ID / 管理番号 | 4623 / 1750 |
|---|---|
| 所在地 | 静岡県伊東市八幡野 |
| 交通 |
伊豆急行「伊豆高原」駅よりバス乗車 約5分「高原中央」停歩 約9分 |
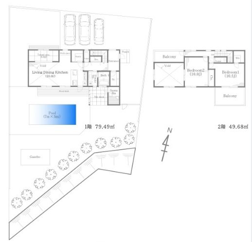
| 土地面積 | (公簿) 449m2 |
| 建物規模 | 地上階数 2階 |
| 建物面積 | 129.17m2 |
| 土地権利 | 所有権 |
| 地目 | 山林 (現況:宅地) |
| 都市計画 | 非線引区域 |
| 用途地域 | 無指定 |
| 建ぺい率 | 60% |
| 容積率 | 200% |
| 地勢 | 平坦 |
| 管理形態 | 全部委託 |
| 管理会社 | 伊豆高原親和会 |
| 築年月 | 令和6年 / 2024年 9月 |
| 駐車場 | あり 駐車3台可 |
| 建物現況 | 空き家 |
| 土地現況 | 建物あり |
| 引渡時期 | 相談 |
| 引渡条件 | 現況渡 |
| 接道状況 |
北 間口20m
私道 幅員5.5m
|
| 設備1 | 個別浄化槽 プロパンガス 電気 |
| 設備2 | |
| 備考(その他情報) | ■温泉について ・契約期間2026年9月30日まで(更新料:385,000円/5年間) ・名義変更料:220,000円(税込) ■管理会社:伊豆高原親和会(年会費有) ・個人所有者:19,200円/年、法人所有者:78,600円/年 ■水道/「私営水道」であり独自の規定が設けられておりますので、遵守して下さい。 ※図面と現況が異なる場合は現況を優先と致します。 |
| 取引態様 | 仲介 |
この物件は日本マウント株式会社が取り扱っています
この物件の周辺地図
【ご注意】現地の場所は必ずしも正確ではなく、”大体の場所”を示していることがありますので、一度お問い合わせください。
この物件のお問い合わせはこちら
情報提供会社
日本マウント株式会社
- 所在地
- 東京都品川区平塚2-5-8五反田ミカドビル3F
- 加盟団体
- <社>全日本不動産協会
- 免許番号
- 東京都知事(4)第87982号
- 会社メッセージ
-
相続のお悩み、移住、都内への引っ越し、日本マウントグループは、ワンストップで不動産トラブルの難題を解決してきました。
田舎暮らし物件、リゾート物件を扱う日本マウント株式会社と、東京を中心に一都三県の都心の物件を扱う株式会社首都圏不動産販売。
そして、相続問題、税金問題、不動産問題を解決に導くアイレス株式会社の3社があなたの悩みを解決します。
日本マウントは主な事業として、那須・安曇野・八ヶ岳・富士五湖・南房総等の中古別荘や、長野県、山梨県、栃木県、茨城県、千葉県、静岡県の中古住宅、田舎暮らし向きの住宅の売買・仲介をしております。
また、物件の買取・調査・管理も行っています。田舎暮らしのお手伝いもいたします。
物件数も日々増えていきますので、リーズナブルな優良物件を見逃さないよう、当社ホームページを小まめにご覧いただければと思います。
関連する物件
この物件に類似するものをピックアップしてみました。





































